Iancu Nicolae
Modern 2 bedrooms apartment | Rovere Residence | ID:1509352

450,000 €
  • 3 rooms
  • 2 bedrooms
  • 3 bathrooms
  • 180 sqm built
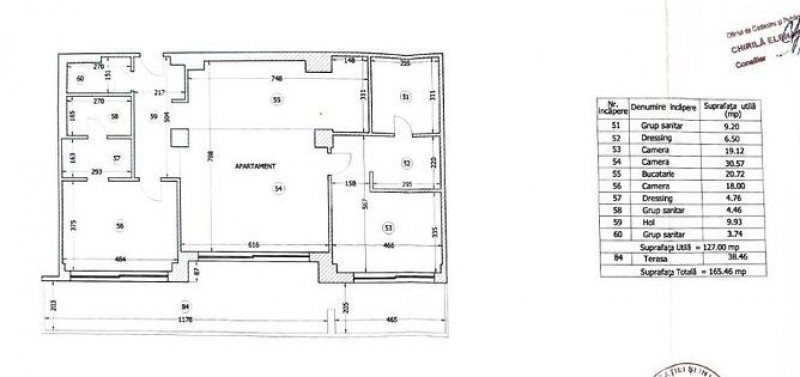
  • 127 sqm usable
  • 1 / 1UG+GF+3E
  • 2010 finalized

Modern apartment with 2 bedrooms located in a residential complex with swimming pool and security, is distinguished by space, quality and facilities such as: swimming pool, fitness room and playground for children.
The apartment has an usable area of 127sqm, 38sqm terrace and has 1 parking space in the garage.
It consists of living area with dining room and open kitchen, guest toilet, master bedroom with dressing and en suite bathroom and 2nd bedroom with dressing and en suite bathroom. All rooms have exit on the terrace.
The apartment is completely renovated in 2021.

Facilities

1 garage
Air conditioning
Stove
Shower
Bathtub
Dressing room
Fridge
Kitchen hood
Washing machine
Dishwasher
TV
Fully furnished
Luxury Furnished furnished
Radiators
Central heating
Open kitchen
Furnished kitchen
Equipped kitchen
Water meters
Heating meter
Electricity meter
Yard
Shared yard
Private garden
Elevator

Contact Agent

Violeta Anghel Real Estate Agent
Violeta Anghel
Department Manager
0724...click...